Kaufpreis
329.000€
- 4 Zimmer
- 1.5 Badezimmer
- ~ 128 m² Wohnfläche
- ~ 854 m² Grundstücksfläche
- Baujahr 1982
Beschreibung
Dieses charmante Nurdachhaus aus dem Jahr 1982 bietet seinen neuen Eigentümern eine besondere Wohnatmosphäre in naturnaher Lage!
Die markante Architektur schafft ein gemütliches Ambiente, das durch den durchdachten Grundriss und praktische Raumlösungen ergänzt wird. Das Haus wird über eine Gasheizung von Vaillant (Baujahr 2006) beheizt. Im Erdgeschoss sorgt eine Fußbodenheizung für behagliche Wärme, während im Keller und Dachgeschoss klassische Heizkörper installiert sind. Die doppelt verglasten Holzfenster fügen sich mit ihrer Optik harmonisch in den Charakter des Hauses ein. Sie unterstreichen den einzigartigen Stil des Nurdachhauses und verleihen ihm einen stimmigen, gemütlichen Gesamteindruck.
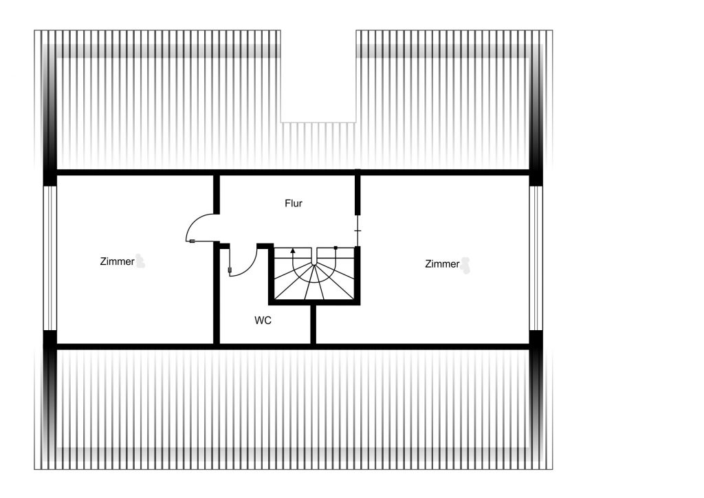
Im Erdgeschoss befindet sich der Lebensmittelpunkt des Hauses: ein offener Wohn- und Essbereich mit Kaminofen und angrenzender Küche, ein Schlafzimmer sowie ein Duschbad mit WC. Die offene Holztreppe führt ins Dachgeschoss: Hier stehen zwei weitere Zimmer sowie ein separates WC zur Verfügung – ideal als Kinder-, Gäste- oder Arbeitszimmer.
Das Haus ist vollständig unterkellert und bietet somit wertvolle Nutzfläche. Neben zwei Abstellräumen und dem Heizungskeller befindet sich hier ein weiterer Raum mit Infrarotkabine, Dusche und WC. Eine Außentreppe ermöglicht den direkten Zugang in den Garten. Auf dem Grundstück stehen zwei Metallgaragen zur Verfügung, die aktuell als Garage und Gartenschuppen genutzt werden. Die Terrasse des Hauses ist nach Süden ausgerichtet, was bedeutet, dass sie tagsüber optimal von Sonnenlicht verwöhnt wird. Dies schafft ideale Bedingungen für entspannte Stunden im Freien, sei es beim Frühstück, beim Grillen oder beim Genießen der Abendsonne. Dank seiner ruhigen Lage in der Lüneburger Heide und der besonderen Architektur eignet sich das Objekt nicht nur als dauerhaftes Wohnhaus, sondern auch hervorragend als Ferien- oder Wochenendhaus. Hier finden Sie den idealen Rückzugsort zum Entspannen, Erholen und Wohlfühlen.
Infos zum Hausstil:
Das Nurdachhaus erfreute sich in den 1970er/1980er Jahren besonders in Deutschland großer Beliebtheit. Charakteristisch ist die markante Dachform, die das Erd- und Obergeschoss harmonisch miteinander verbindet. Durch die besondere Konstruktion entstehen helle, offene Räume mit viel Raumhöhe, die gleichzeitig ein gemütliches Wohnambiente schaffen. Sein seltenes, eigenständiges Design hebt das Haus deutlich von standardisierten Neubauten ab. Die Dachform leitet Regenwasser zuverlässig ab, Schnee fällt bei entsprechender Neigung leicht vom Dach.
Fazit: Ein Nurdachhaus ist die perfekte Wahl für alle, die ein Zuhause mit Charakter, Charme und besonderem Wohngefühl suchen.
Ausstattung
- Offener Wohn-/Essbereich
- Einbauküche
- Voll unterkellert
- Fußbodenheizung
- Kaminofen
- Infratotkabine
- Gäste-WC
- Terrasse
- Einzelgarage
- Zisterne zur Regenwassernutzung
- Gasheizung
- Grüne Lage
Objektdetails
Objektart
Einfamilienhaus
Zustand
Gepflegt
Zimmer
4
Badezimmer
1.5
Etagen
2
Garagen/Stellplätze
Garage
Gesamtfläche
~ 200 m²
Wohnfläche
~ 128 m²
Grundstücksfläche
~ 854 m²
Bodenbeläge
Fliesen, Vinyl, Teppich
Energieausweis
Baujahr
1993
Energieausweis vorhanden?
Ja
Art des Energieausweises?
Verbrauchsausweis
Energieeffizienzklasse
F
Endenergiebedarf
164,5 kWh/(m²a)
Heizungsart
Etagenheizunh
Energieträger
Erdgas L
Erneuerbare Energien?
nein
Ort: Hützel, Niedersachsen
- Charmantes Nurdachhaus in idyllischer Dorflage am Rand der Lüneburger Heide
- Sonnige Südterrasse und liebevoll angelegter Garten mit viel Grün
- Ruhige Wohnlage mit hohem Erholungswert und naturnaher Umgebung
- Idealer Ausgangspunkt für Freizeit, Wandern, Rad- und Reittouren in der Heide
- Gute Anbindung: Bispingen 5 Min, Soltau 15 Min, Hamburg & Hannover ca. 45 Min
WIR HELFEN IHNEN GERNE
Kontaktieren Sie uns
Haben wir Ihr Interesse geweckt? Zögern Sie nicht und vereinbaren Sie einen Besichtigungstermin mit uns.
- +49 5196 963 88 52
- info@prill-immobilien.com
- Dethlinger Weg 40, 29649 Wietzendorf


