Kaufpreis
259.000€
- 3 Zimmer
- 1 Badezimmer
- ~ 70 m² Wohnfläche
- Baujahr 2026
Beschreibung
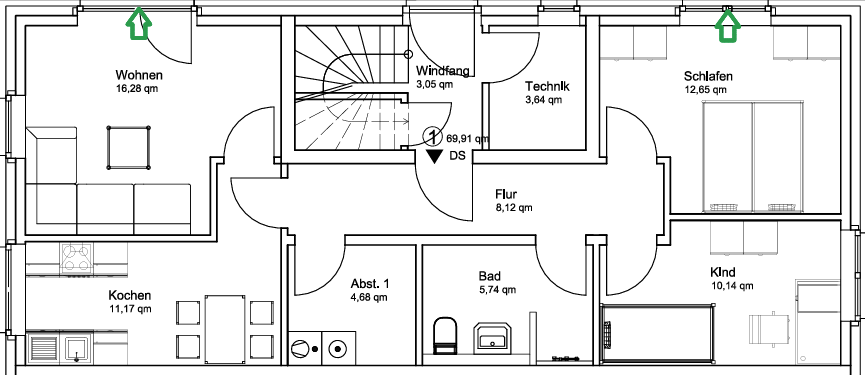
In einem modernen Neubau mit vier Wohneinheiten entsteht diese klare, 70 m² große 3-Zimmer-Erdgeschosswohnung – durchdacht geplant, hochwertig ausgestattet und schlüsselfertig ca. 12 Monate nach Baubeginn. Die Baugenehmigung wird in Kürze erwartet. Der Grundriss setzt auf Leichtigkeit und Logik: Drei separat begehbare Zimmer bieten Ihnen vielfältige Möglichkeiten: Ob als Schlafzimmer, Homeoffice, Kinderzimmer oder kreativer Rückzugsort – hier können Sie Ihre Raumideen flexibel verwirklichen. Die kompakte Aufteilung schafft eine gemütliche Wohnatmosphäre und ermöglicht kurze Wege im Alltag. Große Fenster sorgen für angenehmes Tageslicht in allen Räumen. Die separate Küche bietet Platz für gemeinsames Kochen, während das moderne Bad mit bodengleicher Dusche den Komfort abrundet. Zur Wohnung gehört außerdem ein praktischer Abstellbereich, der zusätzlichen Stauraum schafft. Der private Außenbereich punktet mit einer Terrasse.
Die Material- und Formensprache der Wohnung ist bewusst reduziert und zeitlos modern: Großzügige Fensterflächen lassen viel Licht herein und unterstreichen die klaren Linien der Architektur. Hochwertige Bodenbeläge und sorgfältig ausgewählte Fliesen schaffen eine harmonische, elegante Basis. Die moderne Einbauküche fügt sich nahtlos ins Gesamtbild ein und vereint Design mit Funktionalität. Geheizt wird komfortabel über das Nahwärmenetz der Bispingen Naturwärme GmbH. Die Außenanlagen werden vollständig angelegt (Rasen, Pflanzflächen, gepflasterte Wege); PKW-Stellplätze stehen auf dem Grundstück zur Verfügung.
Gut zu wissen: Gestalterische Wünsche (z. B. bei Boden-/Wandfliesen oder Küchenfronten) können – bei frühem Einstieg – berücksichtigt werden.
Hinweis: Diese Erdgeschosswohnung ist in der zweiten Doppelhaushälfte als spiegelbildliche Einheit mit identischem Zuschnitt und Ausstattungsniveau ebenfalls verfügbar.
Ausstattung
- Massivbauweise mit Verblendstein
- KfW-55 – energieeffiziente Bauweise
- Terrasse
- Kunststofffenster 3-fach-Wärmeschutzverglasung, innen weiß / außen anthrazit
- Vinyl in Eichendekor
- Großformatige Fliesen (60×60 cm)
- Einbauküche von Nobilia inkl. Elektrogeräten
- Rollrasen & Pflanzflächen
- gepflasterter Stellplatz
- Gestaltungsspielraum bei Fliesen etc.
Objektdetails
Objektart
Eigentumswohnung
Zustand
Neubau
Zimmer
3
Badezimmer
1
Etage
1/2
Garagen/Stellplätze
Außenstellplatz
Gesamtfläche
~ 70 m²
Wohnfläche
~ 70 m²
Grundstücksfläche
~ 1.007 m²
Bodenbeläge
Fliesen, Vinyl
Energieausweis
Baujahr
1993
Energieausweis vorhanden?
Ja
Art des Energieausweises?
Verbrauchsausweis
Energieeffizienzklasse
F
Endenergiebedarf
164,5 kWh/(m²a)
Heizungsart
Etagenheizunh
Energieträger
Erdgas L
Erneuerbare Energien?
nein
Ort: Bispingen, Niedersachsen
- Charmanter Heideort im Herzen der Lüneburger Heide mit hohem Freizeitwert
- Nahegelegene Einkaufsmöglichkeiten wie EDEKA und ALDI im Ort
- Ruhige Wohnlage mit gewachsener Nachbarschaft und sicherem Umfeld
- Natur vor der Haustür: Rad- und Wanderwege, Wilseder Berg, Naturpark Lüneburger Heide
- Gute Erreichbarkeit: Soltau 15 Min, Hamburg 45 Min, Hannover ca. 60 Min
WIR HELFEN IHNEN GERNE
Kontaktieren Sie uns
Haben wir Ihr Interesse geweckt? Zögern Sie nicht und vereinbaren Sie einen Besichtigungstermin mit uns.
- +49 5196 963 88 52
- info@prill-immobilien.com
- Dethlinger Weg 40, 29649 Wietzendorf

